Skip to main content
  • Quadrio 17 l'edificio

    Riqualificazione di un complesso
    per uffici multitenant

  • Quadrio 17 riqualificazione

    Riqualificazione di un complesso
    per uffici multitenant

  • Quadrio 17 riqualificazione

    Riqualificazione di un complesso
    per uffici multitenant

Riqualificazione
di un complesso per uffici multitenant

Un fit-out completo
nel segno della flessibilità

Dalla radicale riorganizzazione di un prestigioso complesso per uffici dei primi del Novecento e dell’annesso grande blocco multipiano, entrambi di proprietà della società di assicurazioni Zurich e situati in un’area strategica per lo sviluppo della città, nasce un nuovo complesso direzionale multitenant con elevati standard di sostenibilità ambientale e di comfort.

Lo Studio Ferraresi è stato incaricato della direzione lavori e del coordinamento della sicurezza in fase esecutiva dell’intero progetto.

  • Tipologia:

    Uffici

  • Localizzazione:

    via Quadrio 17/via Maroncelli, Milano

  • Anno:

    2022-2023

  • Committente:

    Zurich Insurance Plc

  • Budget:

    17 mln €

Courtesy WiP Architetti

Caratteristiche
del progetto

Rispetto della storia

Gli edifici oggetto dell’intervento sorgono nel quartiere di Porta Garibaldi, non lontano da piazza Gae Aulenti, in un’area simbolo della rinascita urbanistica di Milano che in questi anni ha visto mutare la sua fisionomia con numerose nuove costruzioni e ristrutturazioni di qualità. Il lotto di forma quasi triangolare è occupato da quattro corpi di fabbrica: due storici con affaccio su strada lungo le vie Maroncelli e Quadrio e due multipiano all’interno dell’isolato, con l’aggiunta di vari piani interrati. I due blocchi multipiano, progettati dallo Studio Gantes intorno al 1990, erano stati collaudati dallo Studio Ferraresi.

La parte più significativa dell’operazione è senz’altro la riqualificazione dell’elegante edificio per uffici dei primi del Novecento che fiancheggia via Maroncelli risvoltando su via Quadrio, in precedenza occupato dalla società di consulenza Accenture, e di un’addizione successiva sempre su via Quadrio che dà accesso alla corte centrale tramite un doppio passo carraio.

Immagine unitaria

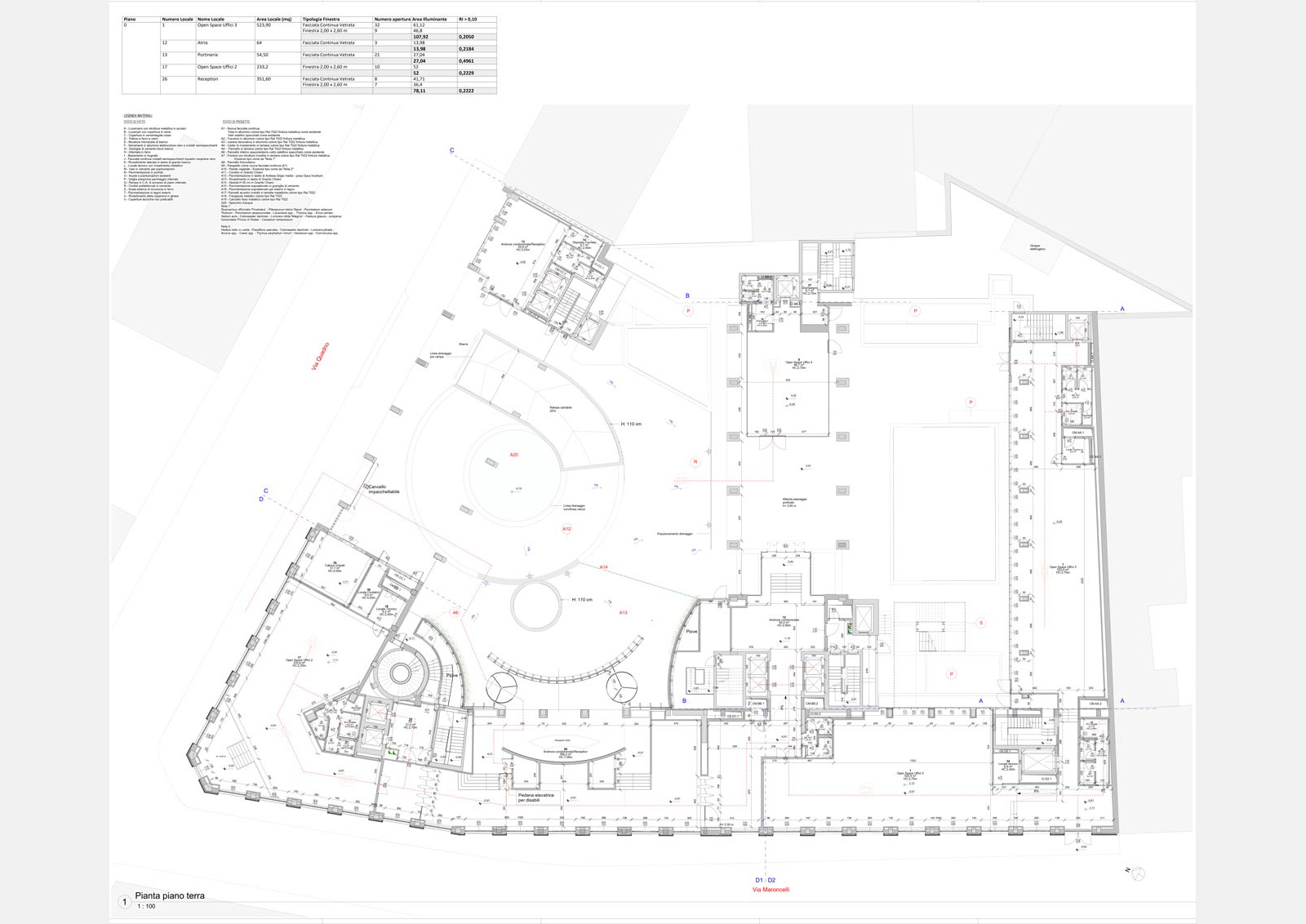
Il progetto architettonico dello studio WiP Associati ha previsto la riqualificazione interna di tutti e quattro i corpi per ricavare spazi per uffici di vario taglio da affittare in Cat A. Contestualmente sono state ampliate le volumetrie delle coperture e le superfici ai piani terra affacciate sull’ampia corte interna, nodo dei principali percorsi distributivi. Il tema più rilevante del progetto è la creazione di un’immagine stilistica unitaria per i due edifici su strada con una nuova pelle esteticamente e tecnologicamente più performante, scandita da una successione ritmica di lame verticali. Partendo dal nuovo sopralzo in via Maroncelli, il raffinato involucro in vetro e metallo prosegue come un grande nastro al di sotto del tetto fino in via Quadrio, lasciando in evidenza la suggestiva facciata a lesene dell’edificio storico e mascherando invece opportunamente l’anonimo fronte di ingresso del fabbricato più recente.

Da Palazzo Broggi a un complesso moderno

La prima sede del Credito Italiano, affacciata sulla scenografica ellisse di Piazza Cordusio, era stata edificata nel 1903 in stile eclettico su progetto di Luigi Broggi. Nei decenni seguenti la banca aveva incorporato i numerosi edifici, di vario taglio ed estensione, che affollavano l’isolato retrostante in direzione della Galleria e del Teatro alla Scala.

Alla fine degli anni Cinquanta la necessità di reperire nuovi spazi per il personale amministrativo, i caveau e un’altra sala sportelli aveva richiesto la costruzione di un nuovo complesso improntato a una maggiore razionalità distributiva. Era essenziale garantire la continuità volumetrica con le costruzioni preesistenti inglobando la facciata in ghisa dei Magazzini Contratti di via Tommaso Grossi, pregevole testimonianza di architettura liberty sempre di Luigi Broggi.

 

Il progetto architettonico

L’intervento ha previsto in primo luogo lo “svuotamento” integrale dell’isolato, con l’eccezione del palazzo di Broggi. A quest’ultimo si è raccordato il nuovo ampio complesso progettato dall’Ufficio Tecnico del Credito Italiano in collaborazione con Giovanni Muzio, uno dei maestri dell’architettura italiana del Novecento. Vari corpi di fabbrica di 6 piani fuori terra sono disposti lungo il perimetro dell’isolato e circondano un grande corpo centrale più alto, con una copertura a cupola che alloggia i volumi tecnici.

 

Flessibilità distributiva e sintonia con il contesto

Tutti i piani di uffici, caratterizzati dalla massima flessibilità grazie alle pareti mobili, erano serviti da ampi corridoi che componevano un percorso anulare continuo. I fronti esterni hanno richiesto un particolare studio per armonizzarsi con il contesto ambientale, costituito in gran parte dalla decorosa edilizia rappresentativa otto-novecentesca che caratterizza il centro di Milano. Per questo sono stati scelti materiali che invecchiando formano una patina carica di storia e di fascino: rame per i sottofinestra e i costoloni del curtain wall, bronzo per i serramenti e granito rosa per il paramento al piano terra.

Di particolare interesse è il basamento multipiano che occupa l’intera superficie del lotto, e che ospita le autorimesse, i caveau con solette e pareti rinforzate, le centrali tecnologiche  e gli archivi.

 

Un cantiere molto impegnativo

L’incarico dello Studio Ferraresi ha riguardato la progettazione e la direzione lavori delle strutture. Tra il 1963 e il 1968 operando in due lotti l’isolato è stato totalmente svuotato e riedificato con una struttura di fondazioni a travi rovesce, solette portanti in laterocemento a nervature incrociate e travi in calcestruzzo armato.

Particolare impegno ha richiesto la gestione del cantiere, localizzato in vie centrali ad alto traffico, con edifici multipiano e spazi di manovra angusti che hanno reso impossibile operare con i tradizionali mezzi meccanici. Un’altra difficoltà da superare era la notevole profondità dello scavo di fondazione, che raggiungeva la quota di 23 metri sotto il piano stradale. Per sostenere il terreno in corso d’opera è stato necessario predisporre dei diaframmi in calcestruzzo armato, gettati lungo tutto il perimetro dei lotti con l’ausilio di fanghi di bentonite. Al procedere dello scavo i diaframmi sono stati rinforzati con puntellazioni di contrasto e pali tiranti infissi nel terreno.

  • Quadrio 17 panoramica
    Ph. Arturo Giorza
  • Quadrio 17 vista esterna
  • Quadrui 17 facciata
  • Quadrio 17 disegni tecnici
    Courtesy WiP Architetti
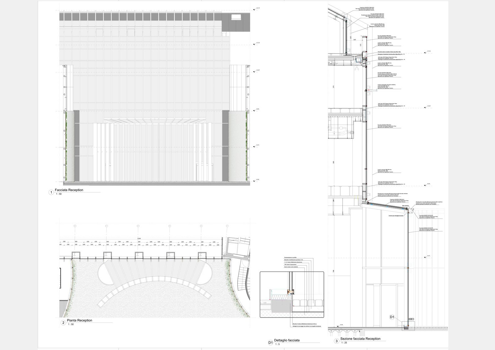
  • Quadrio 17 disegni tecnici
    Courtesy WiP Architetti
  • Quadrio 17 disegni tecnici
    Courtesy WiP Architetti

Spazi flessibili di lavoro e circolazione

La corte interna, riconvertita in una piccola piazza pedonale con al centro una vasca d’acqua, è valorizzata da una nuova lobby a due piani inquadrata da pareti verdi che costituisce una luminosa quinta di ingresso e di raccordo tra i corpi esistenti.

All’interno dei singoli fabbricati i concetti chiave sono il completo ripensamento dei collegamenti orizzontali e verticali, la frazionabilità degli spazi dal punto di vista gestionale, operativo e impiantistico e la massima flessibilità nell’utilizzo degli ambienti per i nuovi tenants. Un obiettivo della riqualificazione è far ottenere al nuovo complesso di uffici l’ambìta certificazione energetica LEED GOLD.

Strip out con varie sorprese

La sfida più importante per lo Studio Ferraresi, che ha seguito l’intervento con gli incarichi sia di direzione lavori che di CSE, è consistita nell’adattamento progettuale alle numerose situazioni impreviste riscontrate a seguito della puntuale opera di strip out. Tali situazioni, non preventivabili allo stato di progetto, riguardavano soprattutto lo stato di strutture e orizzontamenti, soggetti per il corpo su via Maroncelli a numerose stratificazioni e addizioni realizzate in oltre un secolo di vita.

Alla rimozione hanno fatto seguito l’adeguamento strutturale e sismico, anche in previsione del nuovo sopralzo del piano di copertura, la completa riorganizzazione del layout interno dei quattro edifici, la posa in opera di impianti tecnologicamente aggiornati, il rifacimento di pavimentazioni e controsoffitti nonché la realizzazione di un avancorpo di ingresso e del sopralzo integrato con le facciate su strada esistenti, valorizzate dalle scenografiche lesene in stile classico.

Conservazione di un gioiello liberty

Un’operazione ancora più complessa ha riguardato la conservazione della facciata dei Magazzini Contratti: prima della demolizione dell’edificio interno si è eseguito un diaframma sotterraneo parallelo a via Tommaso Grossi fino a quota -23 metri, realizzando dei setti perpendicolari alla facciata sui quali è stata appoggiata una struttura provvisoria di sostegno in cemento armato. A quest’ultima è stata successivamente fissata la facciata, mantenuta in perfetta verticalità  e predisposta per l’aggancio definitivo alle nuove strutture in cemento armato retrostanti, seguito dall’eliminazione della struttura provvisoria.

 

Da Credito Italiano a UniCredit

Il rapporto di fiducia tra lo studio Ferraresi e il Credito Italiano è proseguito negli Sessanta e Settanta con la realizzazione dei nuovi uffici in via Broletto e di un centro di formazione nella storica Villa Gerno di Lesmo, e negli anni Duemila dopo l’incorporazione dell’istituto nel gruppo UniCredit. Nel 2006 Andrea Ferraresi è stato incaricato di seguire la parte esecutiva di un nuovo salone per il pubblico e un’aula magna in piazza Cordusio.

 

Nuovo salone per il pubblico

Il salone, con accesso dallo scenografico fronte di Palazzo Broggi, necessitava di una nuova immagine per comunicare identità e valori di UniCredit, uno dei più grandi gruppi bancari italiani. Lo Studio Ferraresi ha affiancato il progettista dell’allestimento (Studio Sighinolfi) per le pratiche amministrative, il calcolo delle strutture e la direzione lavori. La necessità di mantenere la continuità operativa dell’agenzia bancaria durante il cantiere, opportunamente compartimentato per ragioni di security, e di rispettare una tabella di marcia molto compressa, con solo sette mesi dall’inizio della progettazione alla consegna, ha richiesto uno sforzo non irrilevante. Il degrado diffuso delle strutture ormai centenarie ha consigliato di partire, invece che da un progetto esecutivo completo, da un semplice concept design reso esecutivo man mano che il lavoro procedeva con le demolizioni. Questo metodo, che si è rivelato di grande efficacia, ha implicato una stretta e continua collaborazione tra il progettista architettonico e la controparte ingegneristica.

 

Aula magna

L’aula magna è stata ricavata unendo due ambienti sottoutilizzati al piano terra del corpo centrale di Giovanni Muzio. Lo Studio ha affiancato l’Ufficio Tecnico UniCredit per le pratiche amministrative, il calcolo delle strutture e la direzione lavori. Il nuovo spazio, attrezzato con pareti mobili, era caratterizzato dalla presenza di postazioni multimediali e finiture di pregio. Ai tempi di esecuzione molto rapidi (cinque mesi) si è sommato l’impegno di coordinare il lavoro di numerosi soggetti (imprese edili, impiantisti, installatori delle pareti mobili e dei sistemi informatici) e di armonizzare le esigenze della committenza, frazionata in una pluralità di interlocutori.

  • Quadrio 17 cantiere
  • Quadrio 17 cantiere
  • Quadrio 17 disegni tecnici
    Courtesy WiP Architetti
  • Quadrio 17 cantiere
  • Quadrio 17 particolare del soffitto
  • Quadrio 17 disegni tecnici
    Courtesy WiP Architetti
  • Quadrio 17 facciata
  • Quadrio 17 disegni tecnici
    Courtesy WiP Architetti
  • Quadrio 17 lavori sulla facciata
  • Quadrio 17 cortili interni

Particolarità
dell’intervento

Nell’edificio d’epoca su via Maroncelli l’intervento ha richiesto una buona dose di creatività sul campo da parte del team dello Studio Ferraresi per far fronte, in tempi brevi e nel rispetto del budget previsto, alle numerose situazioni impreviste riscontrate durante lo strip out e l’esecuzione del sopralzo.

Altri
progetti

    Ti interessano
    i nostri servizi?


    Piazza Appio Claudio, 8
    20124 Milano MI
    T: +39 02 668 8391


    © Studio Tecnico Ing. A. Ferraresi 2024 -
    All rights reserved