-
Riqualificazione
del complesso
Torri Garibaldi -
Riqualificazione
del complesso
Torri Garibaldi -
Riqualificazione
del complesso
Torri Garibaldi
Restyling impegnativo
di un complesso
ecosostenibile
Le due torri di uffici alte 25 piani che svettano sui binari della Stazione Garibaldi sono state realizzate tra gli anni Ottanta e Novanta per le Ferrovie dello Stato. In seguito sono state cedute a un nuovo proprietario, Beni Stabili, che dal 2008 ne ha avviato il restyling a partire dalla torre est del complesso.
Lo Studio Ferraresi è stato chiamato ad assumere la direzione lavori per la riqualificazione della torre ovest e la demolizione e ricostruzione delle costruzioni di servizio tra i due grattacieli.
-
Tipologia:Uffici
-
Localizzazione:piazza Sigmund Freud, Milano
-
Anno:
2011-2012
-
Committente:Beni Stabili SIIQ SpA
-
Budget:
40 mln €
-
Tipologia:Uffici
-
Localizzazione:piazza Sigmund Freud, Milano
-
Anno:2011-2012
-
Incarichi svolti (Andrea Ferraresi):
- Direzione lavori generale torre ovest e corpi di collegamento
- Affiancamento al committente per la validazione del progetto costruttivo dell’impresa
-
Committente:
Beni Stabili SIIQ SpA
-
Progetto architettonico:
Progetto CMR
-
Impresa costruttrice:
Maltauro
-
Superficie lorda di pavimento:
32.000 mq
-
Budget:
40 mln €

Ph. Arturo Giorza
Caratteristiche
del progetto
Architettura ecosostenibile
I due edifici quasi gemelli alti 100 metri ciascuno e progettati dagli architetti Laura Lazzari e Giancarlo Perotta, poggianti in parte su una piastra di autorimesse e in parte sulle strutture e i tunnel ferroviari della Stazione Garibaldi, differivano per la forma concava o convessa delle coperture ed erano un simbolo, talvolta criticato, della stagione postmoderna dell’architettura milanese.
La riqualificazione, progettata dall’architetto Massimo Roj di Progetto CMR, aveva il duplice obiettivo di rinnovarne l’immagine e trasformarle in architetture ecosostenibili all’avanguardia in Italia per l’epoca. Gli esterni sono stati completamente ridisegnati ed attrezzati con fasce verticali continue di pannelli fotovoltaici, sistemi di ventilazione naturale, facciate interattive e serre bioclimatiche ad ogni piano, ottenendo un complesso a zero emissioni.
Una pelle dal design originale
Particolarmente raffinato è il design della pelle delle facciate principali, i cui elementi “sfaccettati” con quattro diversi angoli di inclinazione brillano al sole come diamanti: si tratta in realtà di un rivestimento tecnologicamente avanzato, dotato di cellule a ventilazione interattiva che permettono il controllo del comfort climatico interno. Oggi fiancheggiato dal complesso delle Torri Unicredit e dalla zona di rigenerazione urbana di Porta Nuova, di cui costituisce la “porta” ovest, il progetto simboleggiava l’apertura al futuro della metropoli pur rimanendo nel solco della tradizione milanese per la scelta dei materiali (ceramica, pietra e vetro) e l’originale trattamento delle facciate.
Architettura ecosostenibile
I due edifici quasi gemelli alti 100 metri ciascuno e progettati dagli architetti Laura Lazzari e Giancarlo Perotta, poggianti in parte su una piastra di autorimesse e in parte sulle strutture e i tunnel ferroviari della Stazione Garibaldi, differivano per la forma concava o convessa delle coperture ed erano un simbolo, talvolta criticato, della stagione postmoderna dell’architettura milanese.
La riqualificazione, progettata dall’architetto Massimo Roj di Progetto CMR, aveva il duplice obiettivo di rinnovarne l’immagine e trasformarle in architetture ecosostenibili all’avanguardia in Italia per l’epoca. Gli esterni sono stati completamente ridisegnati ed attrezzati con fasce verticali continue di pannelli fotovoltaici, sistemi di ventilazione naturale, facciate interattive e serre bioclimatiche ad ogni piano, ottenendo un complesso a zero emissioni.
Una pelle dal design originale
Particolarmente raffinato è il design della pelle delle facciate principali, i cui elementi “sfaccettati” con quattro diversi angoli di inclinazione brillano al sole come diamanti: si tratta in realtà di un rivestimento tecnologicamente avanzato, dotato di cellule a ventilazione interattiva che permettono il controllo del comfort climatico interno. Oggi fiancheggiato dal complesso delle Torri Unicredit e dalla zona di rigenerazione urbana di Porta Nuova, di cui costituisce la “porta” ovest, il progetto simboleggiava l’apertura al futuro della metropoli pur rimanendo nel solco della tradizione milanese per la scelta dei materiali (ceramica, pietra e vetro) e l’originale trattamento delle facciate.
Articolazione dell’intervento
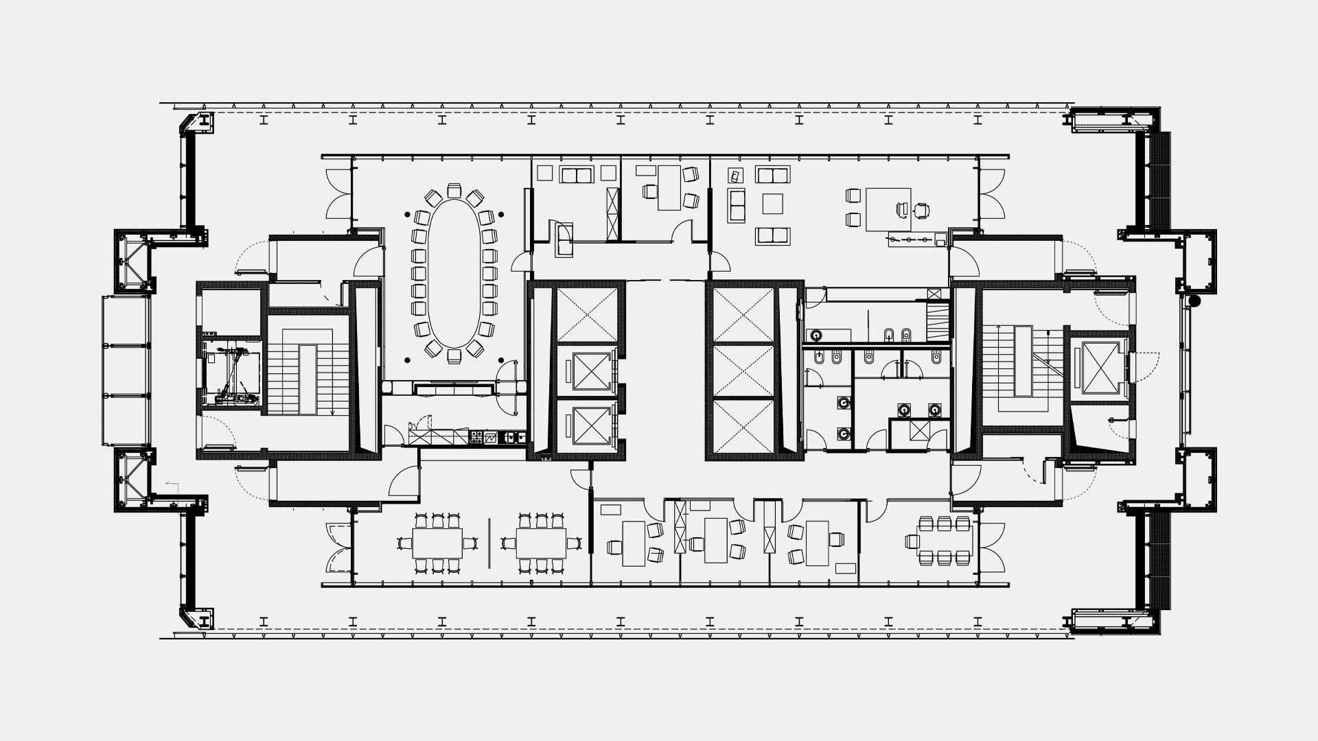
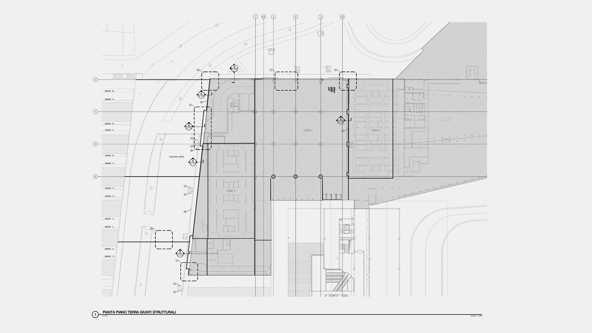
Lo Studio Ferraresi è entrato in scena a lavori già conclusi per la torre est. Andrea Ferraresi si è occupato dell’affiancamento al committente per la validazione del progetto costruttivo dell’impresa e della direzione lavori generale per la ristrutturazione della torre ovest (Torre A), la demolizione e la ricostruzione dei fabbricati tra i grattacieli e i consolidamenti alla base del complesso all’intersezione con le infrastrutture ferroviarie. L’intervento ha comportato la completa messa a nudo della torre, lasciando a vista l’ossatura in acciaio, e la demolizione dei corpi di collegamento sostituiti da un volume vetrato alto cinque piani (Corpo C).
Ottimizzazione dei tempi di lavoro
Le sfide principali erano dettate dalla grande estensione volumetrica dell’intervento ma anche dalla necessità di coordinare lavorazioni ed esigenze molto differenti. Da una parte la necessità di rimontare le facciate in tempi molto rapidi per un elevato numero di piani: con lo svantaggio di operare sopra una linea ferroviaria in esercizio e di fianco a una torre di uffici già abitata, oltre che di movimentare personale e materiali fino ad altezze notevoli, ma con il vantaggio di avvalersi dell’esperienza già conclusa sulla torre gemella e di dover eseguire, dato il numero di piani, operazioni ripetitive e standardizzate ottimizzando notevolmente i tempi di esecuzione. Dall’altra parte il contesto insolito dell’intervento, un grattacielo sulla verticale di una linea ferroviaria molto trafficata, che ha costretto a differire alle ore notturne gli interventi di consolidamento.
Articolazione dell’intervento
Lo Studio Ferraresi è entrato in scena a lavori già conclusi per la torre est. Andrea Ferraresi si è occupato dell’affiancamento al committente per la validazione del progetto costruttivo dell’impresa e della direzione lavori generale per la ristrutturazione della torre ovest (Torre A), la demolizione e la ricostruzione dei fabbricati tra i grattacieli e i consolidamenti alla base del complesso all’intersezione con le infrastrutture ferroviarie. L’intervento ha comportato la completa messa a nudo della torre, lasciando a vista l’ossatura in acciaio, e la demolizione dei corpi di collegamento sostituiti da un volume vetrato alto cinque piani (Corpo C).
Ottimizzazione dei tempi di lavoro
Le sfide principali erano dettate dalla grande estensione volumetrica dell’intervento ma anche dalla necessità di coordinare lavorazioni ed esigenze molto differenti. Da una parte la necessità di rimontare le facciate in tempi molto rapidi per un elevato numero di piani: con lo svantaggio di operare sopra una linea ferroviaria in esercizio e di fianco a una torre di uffici già abitata, oltre che di movimentare personale e materiali fino ad altezze notevoli, ma con il vantaggio di avvalersi dell’esperienza già conclusa sulla torre gemella e di dover eseguire, dato il numero di piani, operazioni ripetitive e standardizzate ottimizzando notevolmente i tempi di esecuzione. Dall’altra parte il contesto insolito dell’intervento, un grattacielo sulla verticale di una linea ferroviaria molto trafficata, che ha costretto a differire alle ore notturne gli interventi di consolidamento.
Sfasamento temporale tra i cantieri
A queste problematiche si è sommato il problema dello sfasamento temporale tra il cantiere della torre e quello del volume più basso, che per motivi burocratico-formali ha ricevuto il via libera del Comune a lavori già avanzati sul grattacielo. Questo ritardo ha obbligato ad effettuare le demolizioni a terra mentre sulla torre si stavano già assemblando i pannelli di facciata, superando una serie di difficoltà operative create dalla contiguità dei due processi. Data la complessità delle strutture esistenti, anche l’esecuzione dell’attacco a terra del nuovo volume è stata impegnativa e ha richiesto un notevole sforzo progettuale e di verifica.
Particolarità
dell’intervento
L’intervento ha tratto beneficio dalla collaborazione altamente professionale sia dell’impresa che del committente. Grazie a una consolidata esperienza di mediazione in sede di direzione lavori lo Studio Ferraresi ha potuto risolvere tutte le criticità prodotte dalla tempistica compressa e dall’estensione dei cantieri. A dimostrare che se un committente preparato equivale a un abile direttore d’orchestra, una direzione lavori efficace è indispensabile come il primo violino per “far funzionare bene” la compagine.